Work
Resume
Work
Resume
Nathan Amani-Luiru

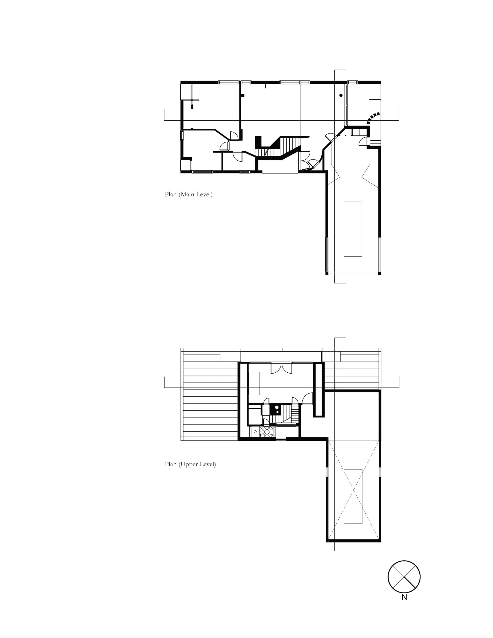
Venturi House Project (Studio Semester 2)

You may also like

Research: Deconstructing Socioeconomic Disparities
2022
Human Scale Chair Project (Studio Semester 1)
2023
Hand Drawings
2022
Main Street Site Project (Studio Semester 4)
2025
Hand Chair Project (Digital Media)
2023
Current Work In the Democratic Republic of Congo
2024
Lawrenceville Site Project (Studio Semester 2)
2024
Bookstore Pavilion Project (Studio Semester 1)
2023
Renders & Animations
2024
Fifth Ave Site Project (Studio Semester 3)
2024
↑Back to Top
Powered by Adobe Portfolio

Cookies are used to personalize and improve your site experience, to enable us to analyze the traffic and usage of the website. Accept Decline